28 Oct CASA MIRADOR – BOLIVIA

Autores: SOMMET. Sebastian Fernandez de Cordova, Ericka Peinado, Mariano Donoso Rea, María Inés Saavedra Tardío, Sandra Molteni Moreno.
Colaboradores: Ismael Carvajal, Fernando Aragón Suárez (ingeniero estructural), Federico Ferrufino Cabrera (ingeniero en instalación hidrosanitaria), Reynaldo Cabrera Bejarano (ingeniero en instalaciones eléctricas), SSA Ingeniería (construcción), Paul Renaud (fotografía).
Distinción: GRAN BIENAL NACIONAL, Categoría A, Producción Profesional, IX Bienal de Arquitectura de Santa Cruz 2024 (BASC).
Categoría: A1, Obra Construida.
Ubicación: La Paz, Bolivia.
Superficie: 540m².
Año de proyecto: 2019-2023.
Planimetrías y fotografías: Gentileza de IXBASC 24.
MEMORIA
La vivienda está formalmente planeada en tres volúmenes que se integran armoniosamente en su entorno. El volumen inferior se incrusta en la topografía inclinada, formando una base cercana al nivel de la calle principal para asentar los volúmenes posteriores. El segundo volumen, correspondiente a la planta baja, se desplaza acercándose a la calle principal, liberando parte de la superficie cubierta del volumen inferior, formando el Mirador, principal atractivo de la casa.
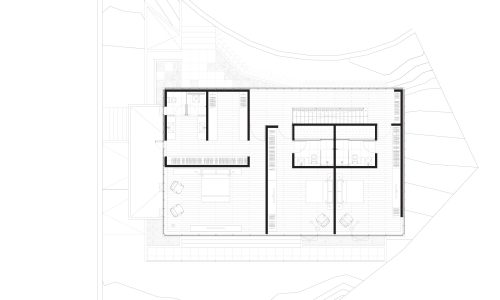
Funcionalmente las plantas son bastante limpias, resultado de la modulación estructural, que permite reducir el número de cerramientos verticales, generando espacios diáfanos que no comprometen la privacidad o aislamiento. Esto se debe a que, si bien cuentan con puertas que dividen los espacios, pueden ocultarse detrás de revestimientos o muebles, otorgando a la vivienda la flexibilidad de cerrar o unificar el espacio.
Los diferentes ambientes han sido estratégicamente ubicados en la vivienda. En la fachada que da a la calle principal se encuentran las circulaciones horizontales y verticales, así como los espacios de menor uso, con el fin de proporcionar mayor privacidad y vistas privilegiadas a los espacios principales y más utilizados, como las habitaciones, el salón, el comedor, la cocina y el escritorio. Estos últimos ambientes se encuentran en la fachada posterior, opuesta a la calle principal, y ofrecen las mejores vistas panorámicas de la ciudad, brindando a los habitantes de la vivienda la sensación de estar en un mirador perpetuo.
En cuanto a los materiales utilizados, se ha dado prioridad a la pureza y la calidad. Estos materiales se seleccionan y colocan meticulosamente desde el inicio del proyecto. Se pueden apreciar materiales como el hormigón visto, el acero, los paneles de madera ripada en el interior de la casa y los paneles de vidrio de piso a techo que ofrecen una transparencia excepcional.
PLANIMETRÍAS
OTROS PREMIOS
2024 – Elegido para representar a Bolivia en los premios Oscar Niemeyer en la V edición para la Arquitectura Latinoamericana 2024










