08 Oct CASA SAN ÁNGEL – MÉXICO

Autores: Miguel Concha + Claudia Vazquez
Distinción: Medalla Plata, Categoría A2, XVIII Bienal Nacional de Arquitectura Mexicana 2024
Categoría: A2. Vivienda Unifamiliar hasta 300m².
Ubicación: Santiago, Querétaro, México.
Link: https://bnamx.org.mx/participante/casa-san-angel/
Planimetrías y fotografías: Gentileza de Ariadna Polo y XVIII BNAMX.
MEMORIA
Casa San ángel es un proyecto de vivienda ubicado sobre un predio en Queretaro, de planta rectangular, con pocos metros de frente que conviven con un entorno netamente urbano que se va desvaneciendo hasta perderse hacia su interior. Contiene un programa complejo en cuanto al respeto a la sencillez en planta y comparte el sitio con varios grandes árboles, un zapote negro que sobresale de una topografía respetada.
Para visualizar el proyecto estos son los elementos importantes a la hora de imaginar el proyecto:
La conexión del interior con el patio a la par del proyecto, para generar una planta libre y continua pero a la vez funcional.
El objetivo de dotar a toda la casa de luz y ventilación natural, por eso el proyecto se desarrolla en su mayoría al centro del terreno. El resultado es que el patio brinda de luz a cada espacio de la casa.
sobre el mosaico verde que cubre el piso interior de la casa generando el recorrido hacia el patio central; gracias a el largo ventanal corredizo que comunica el área principal de la casa se mantiene abierto hasta tarde gracias al clima de la Ciudad de Querétaro, permitiendo vivir de manera tan a gusto sala, comedor y cocina en total unión, controlando el cambio constante de espacialidad que brinda el ventanal y que da hacia la fuente.
La casa abarca hasta las colindancias pintadas de azul que se mimetizan con el tono del cielo. El concreto le da la simplicidad que permite que las líneas verticales de lajas de cuarterón de barro colocadas una a una den un orden, el que se rompe con los colores y formas tanto de las plantas como de la decoración.
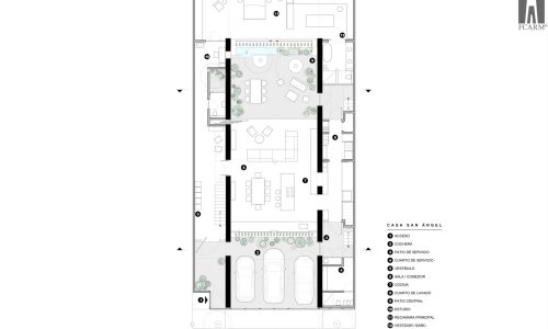
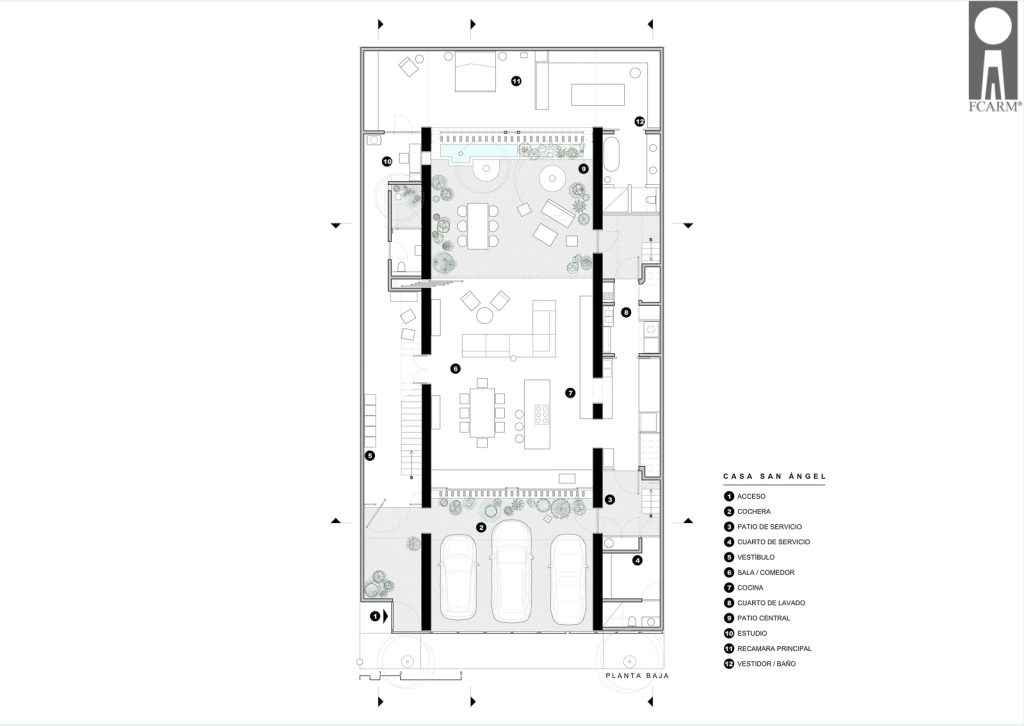
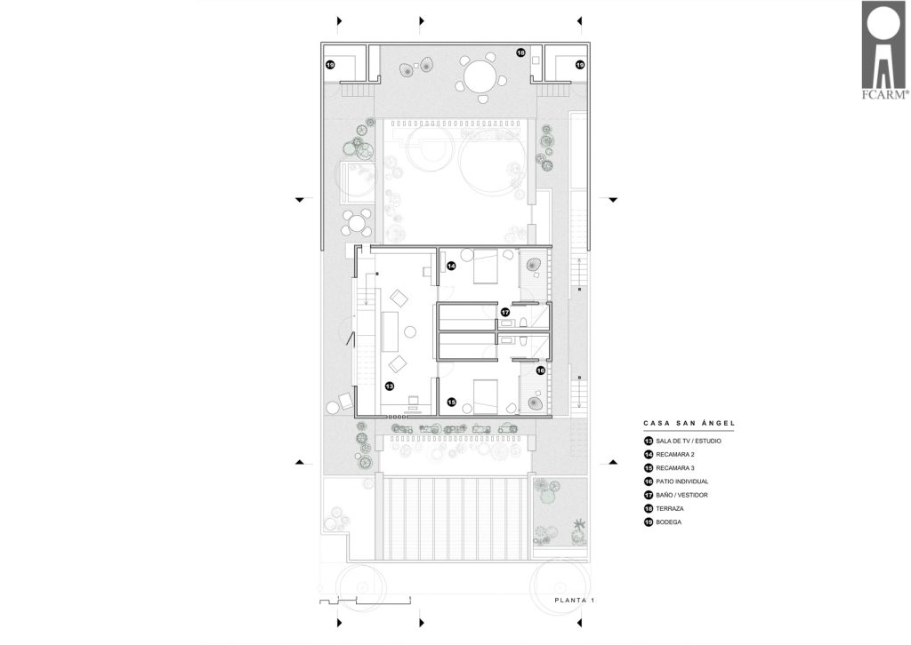
PLANIMETRÍAS
OTROS PREMIOS
2022 – Ganador en el Architecture Master Prize.
2022 – Finalista en Premio Interceramic 2022.




















