15 Oct DÔME DOMAINE D’EXPÉRIMENTATION MARTINIQUAIS – MARTINIQUE

Autores: Florence Le Gall.
Distinción: Premio al mejor equipamiento cultural, Palmarès de l’Architecture Martinique 2024.
Categoría: Equipamiento cultural.
Ubicación: Le François, Martinique.
Superficie: 534m².
Año de proyecto: 2023.
Link: https://maisonarchitecture-mq.org/projets/pam-2024/
Planimetrías y fotografías: Gentileza de Palmarès de l’Architecture Martinique.
MEMORIA
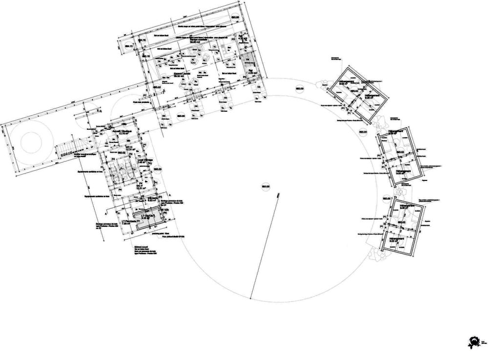
El DôME consiste en la creación de un espacio multifuncional e integrado, energéticamente autosuficiente, dedicado a la observación del cielo, el vulcanismo y la biodiversidad. Concebido para científicos, escolares, turistas y habitantes de Martinica, fue encargado por la Región de Martinica Norte. El emplazamiento se ubica en Le Prêcheur, en Grande Savanne, sobre la ladera occidental del volcán Montagne Pelée, en una superficie total de 7.530 m².
El proyecto respeta al máximo la morfología del terreno y sus riesgos sísmicos y volcánicos, proponiendo una intervención legible y orientada al usuario. El acceso se realiza por una carretera estrecha y empinada; los visitantes llegan en lanzadera eléctrica desde la oficina de turismo de Prêcheur y recorren un sendero arbolado que los conduce a un mirador sobre las copas de los árboles, desde donde se aprecia la costa. Allí comienza la visita, que continúa en la recepción y se articula con el Espace Lacroix, los alojamientos y un helipuerto destinado a emergencias.
Los edificios, diseñados en madera y hormigón, adoptan la forma de cajas abiertas conformadas por paneles ensamblados en una estructura de postes y vigas. Sus fachadas pueden cerrarse completamente por la noche y abrirse de día mediante paneles deslizantes. Los techos, vegetales o equipados con paneles solares, garantizan la autosuficiencia energética. El agua de lluvia se recoge, almacena y trata para su consumo.
El recorrido combina interior y exterior: desde las rampas del Espace Lacroix con paneles expositivos hasta las pasarelas de acero corten que atraviesan el bosque rumbo al volcán, continuando por senderos de hormigón a través de la sabana. El trayecto ofrece vistas espectaculares del mar y la montaña, a la vez que estimula los sentidos del visitante. La experiencia está escenificada mediante plataformas científicas y educativas sobre biodiversidad, vulcanismo, sol y estrellas. En las pasarelas, paneles de lava esmaltada presentan aves y otras especies presentes o desaparecidas.
A lo largo del camino, el visitante descubre estaciones meteorológicas, juegos de luz y sombra, un pozo de Eratóstenes, miradores, referencias a culturas ancestrales y alojamientos semitrogloditas para pasar la noche observando las estrellas o partir temprano hacia el volcán.









