15 Oct GARDENIA – COSTA RICA

Autores: Arq. Benjamín García Saxe.
Colaboradores: Sotela Alfaro LTD (diseño estructural), CIEM (diseño eléctrico), Prodeyco (empresa constructora).
Distinción: Ganador Categoría Hábitat y Vivienda Colectiva Construido, XVIl Bienal Internacional Profesional de Arquitectura 2024.
Categoría: Hábitat y Vivienda Colectiva Construido.
Ubicación: Rohrmoser, San José, Costa Rica.
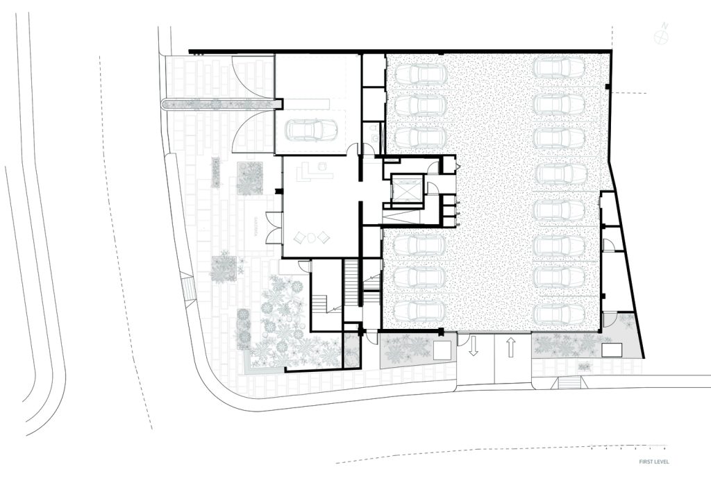
Superficie: 5.544m².
Año de proyecto: 2021.
Link: https://www.bienalcostarica.com/f-0071-p.html
Planimetrías y fotografías: Gentileza de Bienal de Costa Rica.
MEMORIA
Concepto
El primer desarrollo vertical de Studio Saxe se concibió como una oportunidad para llevar el típico jardín a la construcción vertical, aumentando la calidad de vida de los habitantes de las ciudades construidas en el trópico. Los sistemas de riego automatizados permiten que la vegetación prospere en las terrazas creando una sensación de vida interior-exterior.
Diseño
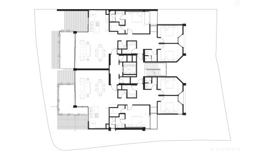
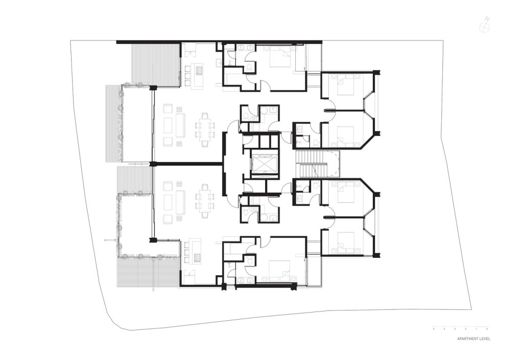
Al crear terrazas distintas en cada nivel, el edificio da personalidad a cada vivienda, permitiendo que cada apartamento, aunque la distribución interior sea la misma, tenga una relación diversa e interesante con el exterior a través de terrazas que se mueven de lado a lado. Esto permite no sólo la privacidad hacia la calle, sino también la protección contra el sol y la lluvia.
Sostenibilidad
Gardenia se concibió mediante estrategias de diseño pasivo, como el control de la temperatura, que permite la ventilación cruzada en cada apartamento, por lo que no hay pasillos entre las unidades. Las grandes terrazas protegen del sol abrasador en ciertos momentos del día, y se combinan con sombrillas que también permiten que la luz se filtre y que se controle la temperatura. La vegetación de cada terraza permite que los materiales se enfríen rápidamente.
Construcción
Gardenia se concibió como una estructura de concreto que utilizó técnicas prefabricadas, lo que le dio la capacidad de ser ensamblada rápidamente en el sitio, permitiendo así que el costo de las unidades se mantuviera dentro de un valor de mercado razonable. Esto confirmó que es posible tener grandes terrazas, vegetación, parasoles y muchas otras tecnologías dentro de un mercado específico.
Interiorismo
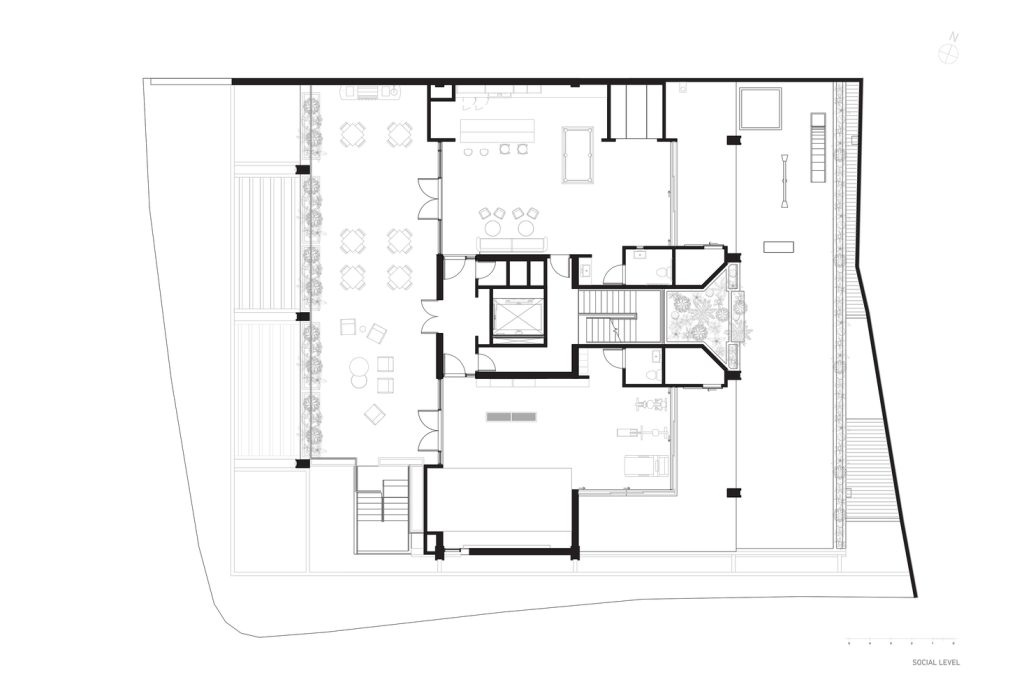
El interiorismo de Studio Saxe coordinó todos los materiales, el diseño de la cocina, el diseño de los baños y los espacios comunes para que fueran coherentes con el tema arquitectónico de una urbanización tropical glamurosa. Este diseño sostenible y bioclimático permitió la cohesión de materiales y colores de dentro a fuera que crearon un edificio armonioso.
Paisajismo
El diseño del paisaje fue clave para crear un edificio que no sólo trae la naturaleza del paisaje a la ciudad, sino que incorpora tecnologías pasivas como la recolección de agua y otras estrategias como la irrigación, el control de las plantas y la biología vegetal. De este modo se creó un verdadero ecosistema con una gran variedad de plantas que permite que las aves y las especies amenazadas.


















