13 Oct Lugar de la Memoria, la Tolerancia y la Inclusión Social (LUM) – Lima, Perú
La Federación Panamericana de Asociaciones de Arquitectos (FPAA) reconoce al edificio El Lugar de la Memoria, la Tolerancia y la Inclusión Social, en Lima, Perú, obra de Sandra Barclay y Jean Pierre Crousse, como un ejemplo destacado de la arquitectura contemporánea latinoamericana, que integra memoria histórica, espacio público y paisaje en un gesto arquitectónico de profunda significación cultural.
FICHA TÉCNICA
Ubicación: Miraflores – Lima, Perú.
Calendario: Concurso: marzo 2010 / Proyecto: mayo – noviembre 2010 / Obra: junio 2011 – junio 2014 / Museografía: octubre – diciembre 2015.
Autores del proyecto: Sandra Barclay, Jean Pierre Crousse.
Datos de contacto: Barclay & Crousse Arquitectos.
Choquehuanca 199 – Chorrillos, Lima 09 PERU
Telf. Fijo: (+51-1) 2520503 / telf. Móvil: (+51) 945142936
atelier@barclaycrousse.com / www.barclaycrousse.com / https://www.barclaycrousse.com/#/place-of-memory/
Colaboradores: Arquitectos: Paulo Shimabukuro, Eduardo Zambrano, Sebastián Cillóniz, Carlos Fernandez, Rosa Aguirre, Mauricio Sialer.
Ingeniería Estructural: Raúl Ríos.
Instalaciones Sanitarias: Roberto Paín.
Instalaciones Eléctricas: Walter Palomino.
Consultoría Espacios exteriores: Verónica Crousse.
Consultoría Gráfica: Icono Comunicadores.
Consultor fotografía y concepto: Roberto Huarcaya.
Museografía: Juan Carlos Burga.
Proprietario: Ministerio de Cultura del Perú.
Promotor / Gestor: Comisión de Alto Nivel para la Gestión e Implementación del Museo de la Memoria / Proyecto de las Naciones Unidas para el Desarrollo (PNUD).
Financiamiento: Cooperación Alemana para el Desarrollo (GIZ) / Gobierno Sueco / Unión Europea, Gobierno del Perú.
Presupuesto Total: 25’000,000 PEN / 9’260,000 US$ / 6’775,000 Euros.
Superficie del terreno: 7,573 m2.
Área Techada: 4,896 m2.
Créditos fotográficos: Cristóbal Palma.
MEMORIA
El proyecto del Lugar de la Memoria, la Tolerancia y la Inclusión Social fue lanzado en el 2010 por la Comisión de Alto Nivel, presidida por el escritor y premio Nobel peruano Mario Vargas Llosa. El objetivo fue crear un lugar para la reconciliación de los peruanos luego de dos décadas de violencia extrema que dejaron más de 70.000 muertos. El LUM tiene como misión no solo dar a conocer los hechos que llevaron a un conflicto sumamente sanguinario, sino también poner en relación a todos los museos y lugares de memoria que han sido construidos en todo el país bajo la iniciativa de las asociaciones de víctimas, sin ningún apoyo del Estado.
El proyecto fue elegido por concurso nacional, teniendo un jurado internacional conformado por Kenneth Frampton, Rafael Moneo y Francesco Dal Co, y los peruanos Wiley Ludeña y José García Bryce. Para su realización se contó con donaciones de los gobiernos de Alemania, Suecia y la Unión Europea, y su ejecución estuvo a cargo del Proyecto de Naciones Unidas para el Desarrollo (PNUD).
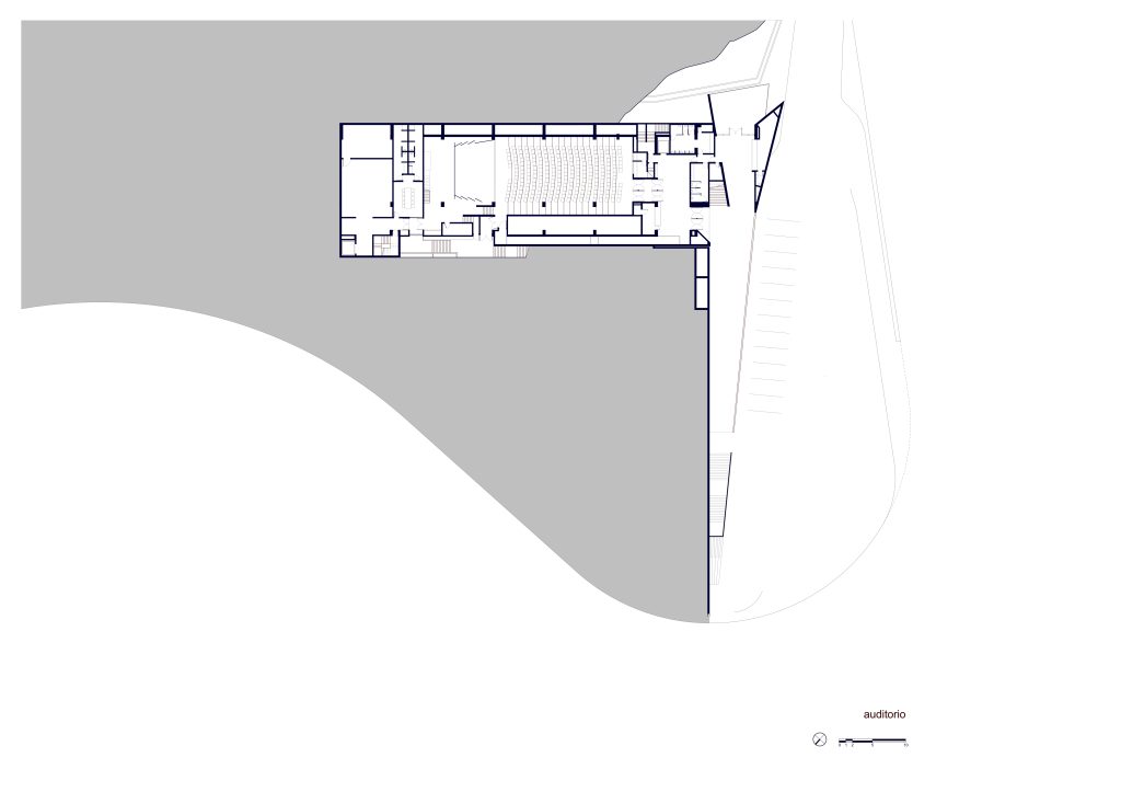
El Lugar de la Memoria se ubica al borde del acantilado que define la bahía de Lima, integrándose al sistema de farallones y quebradas que la conforman. El proyecto sutura la herida provocada por la construcción de una bajada vehicular que une la ciudad con las playas situadas al pie del acantilado. Para ello, se planteó crear un farallón artificial con un edificio compacto implantado bajo la misma lógica de los elementos naturales producto de la erosión. El edificio adquiere así una dimensión territorial y geográfica al formar parte de un sistema topológico de más de 10 km de longitud, que se inicia en el extremo sur de la bahía y culmina en el lugar del proyecto.
En el proyecto tomamos la gran distancia entre la vía pública y el terreno donde está construido, y la estrechez del acceso como la posibilidad de introducir la dimensión de recorrido en el espacio y en el tiempo, preparando al visitante por medio de una experiencia significante que lo aleje de lo cotidiano. El circuito inicia en la vía pública, prosiguiendo a través de una “falla” o quebrada creada entre el edificio y el farallón natural, reproduciendo el recorrido característico de las bajadas históricas de la bahía. La experiencia se articula mediante un recorrido performático que continúa a lo largo de la visita de la colección y termina con el camino de retorno a la ciudad, en una sucesión de espacios abiertos y techados que predisponen al visitante a interactuar activamente con el contenido museográfico.
El terreno es nivelado por medio de terrazas o andenes que permiten el acceso independiente a otros elementos del programa, como el centro de investigación y el auditorio-teatro. Dichos andenes conforman un vasto espacio cívico, no incluido en los términos del concurso, que el proyecto le ofrece a la ciudad. El suelo está constituido por la misma materialidad de los acantilados y del edificio: canto rodado, hormigón y piedra aluvial, puntuado por vegetación común a esta y otras quebradas de la bahía. Desde este espacio público, el edificio expresa su institucionalidad y estatuto público.
Una correcta orientación, el estudio de las aperturas y de la materialidad del edificio permiten obtener un confort acústico y visual, evitando el ingreso de radiación solar directa y el uso de climatización. Con esto se logra la mayor eficiencia posible en el consumo de energía. El agua contra incendios es almacenada en el borde de la explanada pública, creando una transición entre el suelo de la explanada y el océano. Las aguas grises son tratadas para la irrigación de las áreas verdes aledañas, evitando la conexión del edificio a la red pública, localizada en una cota superior al terreno, y los gastos energéticos de bombeo.
PREMIOS
2013 – Premio CICA a la Arquitectura Latinoamericana – Comité Internacional de Críticos de Arquitectura (CICA), Buenos Aires
2013 – Premio Bienal, Categoría Latinoamérica – XIV Bienal Internacional de Arquitectura de Buenos Aires
2014 – Hexágono de Oro – XVI Bienal de Arquitectura del Perú, Lima
2014 – Mies Crown Hall Americas Prize – Proyecto nominado, Chicago
2015 – Premio a la Creación Artística – PUCP, Lima
2016 – Premio Oscar Niemeyer, Quito












