07 Nov ESPLANADE TRANQUILLE – CANADÁ

Autores: FABG y Fauteux and Associates (arquitectos paisajistas), Éric Gauthier (FRAIC), Marc-Antoine Fredette, Amandine Mortka, Vincent Désy, Steve Montpetit, Catherine Doyon-Couturier, Pierre Joly, Giselle Bouron, Roberto Pareja, Anna Kreplak.
Colaboradores: Marc Fauteux, Guy Tremblay, Julie Garin, Benoit Defosse, Antonin Beaupré, Aurélien Dorget (arquitectura del paisaje).
Distinción: National Urban Design Awards 2024, Royal Architectural Institute of Canada (RAIC).
Categoría: Civic Design Projects.
Ubicación: Montreal, QC, Canadá.
Superficie: 4.959 m2 (Interior); 5.400 m² (exterior).
Link: https://raic.org/awards/national-urban-design-awards-2024-recipient-esplanade-tranquille
Planimetrías y fotografías: Gentileza de Steve Montpetit, RAIC y FABG.
MEMORIA
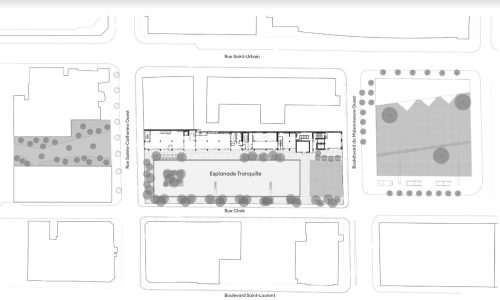
El Quartier des Spectacles de Montreal destaca entre los distritos teatrales norteamericanos por su innovador uso de espacios al aire libre para eventos artísticos gratuitos durante todo el año. La última fase del ambicioso plan maestro de Daoust Lestage para gestionar y desarrollar la red de espacios públicos del distrito es la Esplanade Tranquille de FABG y Fauteux et associés Inc.
El proyecto transforma un terreno baldío de 5.000 metros cuadrados en la esquina de las calles St. Catherine y Clark en un espacio público abierto todo el año. Un edificio de servicios lineal bordea la Explanada, mientras que la plaza principal alberga una zona de conciertos al aire libre durante la temporada de festivales de verano y una pista de patinaje refrigerada en invierno. En el lado norte, una sección de la plaza alberga un escenario móvil. Jardineras y mobiliario móviles invitan a la actividad en la plaza, a la vez que permiten su fácil conversión en un espacio para espectáculos al aire libre. Para completar la composición, los árboles plantados en el perímetro limitan el efecto de isla de calor.
El pabellón de servicio consiste en un conjunto de cajas de madera CLT sobre un zócalo de hormigón con postes y vigas. Los muros de vidrio plegables abren la planta baja del edificio a la plaza y permiten el acceso a las terrazas climatizadas de la primera planta. El edificio también incluye una cubierta verde con un huerto de hierbas y hortalizas que se utiliza para el restaurante de la Explanada. Los pozos geotérmicos bajo la superficie de la pista proporcionan energía para calentar y enfriar el edificio, y el calor residual se recupera de los compresores del sistema de refrigeración de la pista.
Comentarios del jurado:
Esplanade Tranquille es un espacio para todo el año, de excelente ejecución, que se convierte en un espacio de encuentro colectivo para el público activo. La colaboración del equipo de diseño se hace evidente en la fluidez entre los espacios interiores y exteriores y en la animada actividad día y noche. Este espacio, antes abandonado, se ha transformado y cobra vida gracias a sus jardineras y muebles móviles, y a sus vibrantes actividades durante todo el año. La idea de una metrópolis con un espacio público central diverso y rico que combina espacios exteriores e interiores es una innovación visionaria que merece ser reconocida.
Jurado de los Premios Nacionales de Diseño Urbano 2024










